Уважаемые покупатели! Информация по цене и наличию товара, может отличаться от фактической к моменту оформления заказа!
По наличию и стоимости интересующего вас товара, пожалуйста уточняйте по телефону:
Экспедиционный багажник РИФ для Toyota Hilux: Неограниченные возможности для ваших приключений
Готовьтесь к серьезным экспедициям и длительным путешествиям? Наш силовой багажник РИФ размера 1200x1400 мм, созданный specifically для Toyota Hilux 2005-2014 годов выпуска, — это тот самый надежный партнер, который вы искали. Это не просто рейлинги, а полноценная экспедиционная корзина, которая кардинально увеличит полезное пространство вашего пикапа.
Мощь и надежность в каждой детали:
-
Прочная силовая конструкция: Основание изготовлено из квадратной трубы 25x25 мм со стенкой 2 мм, что гарантирует исключительную жесткость и устойчивость к деформации. Верхний периметр и окантовка выполнены из круглой трубы диаметром 20 мм.
-
Высокая грузоподъемность: Багажник готов принять серьезную нагрузку, необходимую для экспедиционного снаряжения, запасных колес, канистр и прочего оборудования.
-
Важное примечание: Помните, что прочность кузова также имеет значение. При превышении нагрузок самым уязвимым элементом может стать водосточная канавка крыши, к которой осуществляется крепление.
-
Готов к любым испытаниям: На багажнике предусмотрены штатные места для удобного монтажа дополнительных фар освещения, антенн и другого экспедиционного обвеса.
-
Долговечное покрытие: Технология порошковой окраски обеспечивает стойкость к коррозии, ультрафиолету и агрессивным средам. Даже в условиях московских зим с реагентами покрытие сохраняет свой вид и защитные свойства годами.
-
Безупречное качество: Мы уделяем внимание каждой сварной точке и каждому соединению, чтобы вы получили продукт, которому можно доверять в самой дальней дороге.
Ключевые особенности багажника РИФ для Toyota Hilux:
-
Модель автомобиля: Toyota Hilux (2005 – 2014 гг.)
-
Тип: Экспедиционная корзина (силовой багажник)
-
Габаритные размеры: 1200 x 1400 мм
-
Материал: Сталь
-
Покрытие: Порошковая краска
-
Назначение: Перевозка экспедиционного груза, запасного колеса, установка дополнительных фар.
Внимание! Ключевые условия установки:
-
Крепеж не входит в комплект и приобретается отдельно в соответствии с вашими предпочтениями.
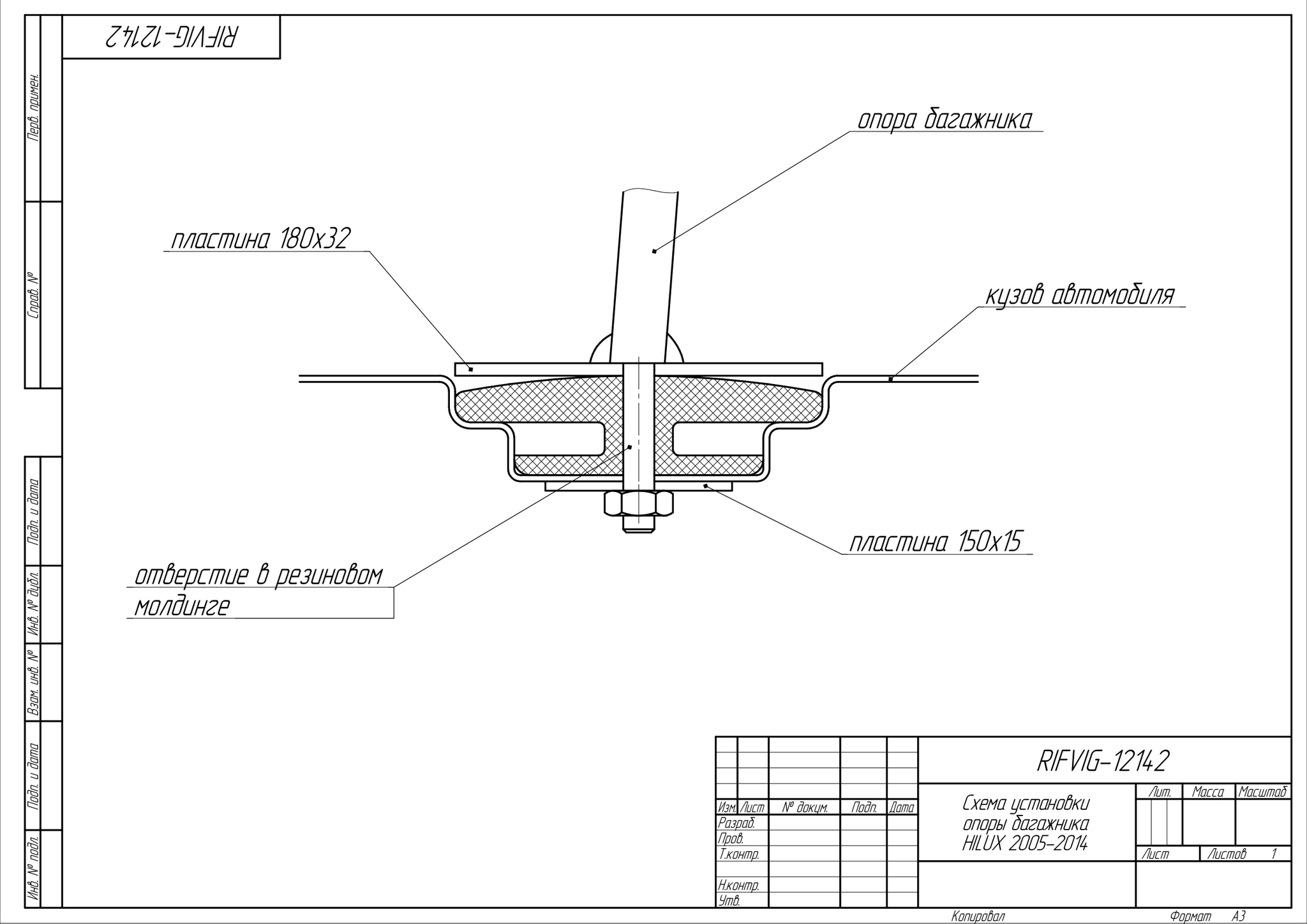
-
Для установки данного багажника требуется сверление крыши автомобиля. Рекомендуем доверить монтаж профессиональным сервисным центрам, имеющим опыт проведения подобных работ.
Оснастите ваш Toyota Hilux багажником РИФ — и покоряйте горизонты с уверенностью!
